 |
|
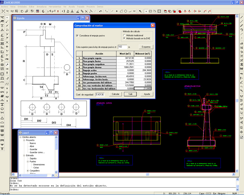
Aplicación: Estribos abiertos de puente. Zapata con forma rectangular y posible tacón en su base. Alzado con fustes en número a elegir con sección circular o rectangular de canto de variable. Diversas tipologías disponibles para la forma del cargadero sobre los fustes. Aletas en voladizo. Libertad para definir los puntos de apoyo del tablero sobre el estribo. Cargas consideradas: peso propio de hormigón y tierras, sobrecarga en trasdós, empujes de tierras y acciones horizontales y verticales, permanentes y variables transmitidas por el tablero del puente (definidas en cada uno de sus apoyos).
|
|
Cálculo: Obtención de los coeficientes de seguridad frente a deslizamiento y a vuelco. Cálculo de las tensiones en el terreno bajo la zapata. El programa realiza la discretización automática de la estructura (zapata y alzado) mediante un emparrillado tridimensional. El usuario puede elegir el tipo de empuje a aplicar en el trasdós del estribo. Al ejecutar el cálculo, CivilCAD2000 genera las cargas, resuelve el cálculo matricial, obtiene las envolventes para cada tipo de carga y las procesa para obtener las envolventes en los estados límite último y de servicio, de acuerdo con lo establecido en las normativas EHE/IAP.
El usuario obtiene mapas de tensiones en el terreno, de esfuerzos longitudinales y transversales en zapata y alzado y de cuantías de armadura a flexión y a cortante.
|
|
Resultados: Con el módulo Estribos pueden obtenerse los siguientes resultados:
- Medición de la estructura: unidades de medición y presupuestos parcial y total.
- Memoria de cálculo, con la definición del estribo, las acciones y resultados de los cálculos realizados.
- Gráficas de resultados: esquema de discretización, mapas de esfuerzos y de cuantías de armadura en zapata y alzado.
- Planos de definición geométrica: planta general, alzado frontal, alzados laterales, sección transversal, y visualización tridimensional del estribo.
|