 |
|
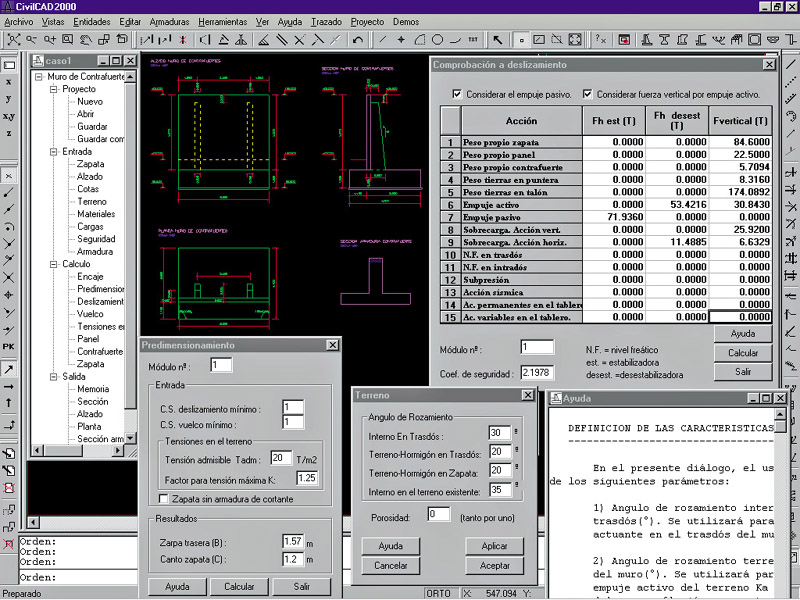
Aplicación: En el módulo de Muros de Contrafuertes, el usuario puede proyectar muros y estribos constituidos por un panel prefabricado con nervios en el trasdós dispuesto sobre una zapata de hormigón ejecutado "in situ". El panel puede tener trasdós vertical o inclinado. Los nervios tienen canto constante o variable en altura. El muro puede tener inclinación longitudinal en la zapata o en la coronación del alzado. En el trasdós puede disponerse opcionalmente un talud inclinado de tierras. Las acciones consideradas son: peso de muro y terreno, presencia de un nivel freático, acción sísmica y, en el caso del estribo, acciones horizontales y verticales, permanentes y variables, del tablero.
|
|
Cálculo: El programa realiza las comprobaciones de los estados límite de deslizamiento y vuelco y obtiene las tensiones en el terreno bajo la zapata para las distintas combinaciones de carga. El usuario puede analizar el panel frente a flexión de eje vertical y flexión de eje horizontal, obteniendo cuantías de armado a flexión y a cortante. También los nervios de los contrafuertes son calculados a flexión y a cortante. Se obtienen los anchos eficaces en las secciones a diferentes alturas y se resuelve la comprobación no lineal a flexión de la sección en T. El programa permite también estudiar el comportamiento a flexión y a cortante de la zapata, tanto en puntera como en el talón.
El despiece del armado de la estructura es obtenido de forma automática. El cálculo de las armaduras es configurable por el usuario de acuerdo con los armados típicos de esta tipología estructural. El programa incluye en el cálculo de armadura la obtención de las cuantías mínimas geométricas y mecánicas establecidas en la EHE.
|
|
Resultados: Con el módulo de Muros de Contrafuertes puede obtenerse los siguientes resultados:
- Medición de la estructura: peso del acero de la armadura y volumen de hormigón en zapata, panel y contrafuertes.
- Memoria de cálculo, con la definición del muro y sus acciones y los cálculos realizados. Listado de despiece del armado del muro.
- Planos de definición geométrica: planta, alzado y sección transversal de un módulo cualquiera, sección horizontal de los nervios a una cota cualquiera.
Todos los resultados obtenidos están permanentemente vinculados al proyecto, de forma que son refrescados cada vez que el usuario realiza un cambio en la entrada de datos.
|