 |
|
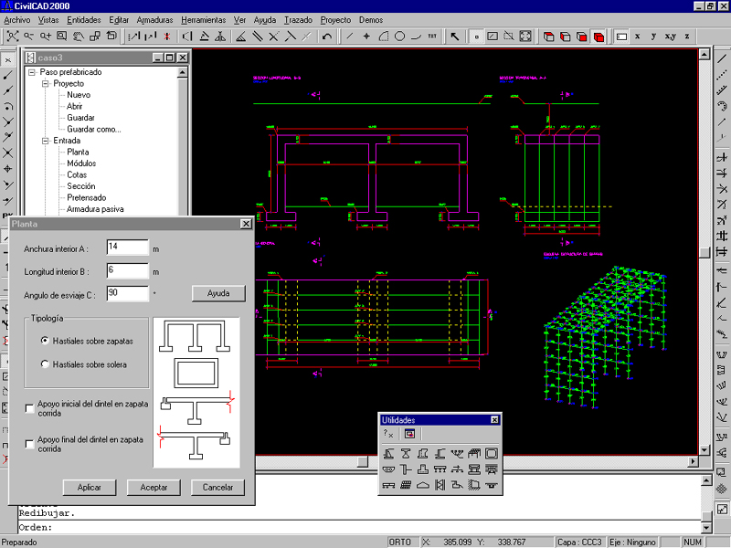
Aplicación: Pasos inferiores prefabricados de hormigón armado.Forma en planta rectangular o trapecial. Sección longitudinal constituida por un dintel empotrado en dos o más hastiales (paso con uno o más ojos). Opción de disponer una zapata durmiente en los extremos del dintel. Dintel ejecutado con vigas armadas o pretensadas sobre las que se hormigona la losa. Posibilidad de definir una capa de tierras sobre el dintel. Acciones consideradas: peso propio de hormigón y de las tierras; empuje de tierras en trasdós; peso de aceras y pavimento; sobrecarga sobre el dintel y en trasdós; paseo de un carro de cargas puntuales, gradiente térmico vertical en dintel.
|
|
Cálculo: CivilCAD2000 desarrolla la discretización automática del puente y la generación de cargas asociadas a cada acción. El programa obtiene los esfuerzos, reacciones y desplazamientos mayorados para cada tipo de carga y genera las envolventes para cada instante del proceso constructivo en los estados límite último y de servicio. El proceso seguido se ajusta a las especificaciones establecidas en las normas EHE/IAP.
El usuario obtiene mapas de esfuerzos longitudinales y transversales en dintel y hastiales.
|
|
Resultados: Con el módulo de Pasos Prefabricados pueden obtenerse los siguientes resultados: - Memoria de cálculo: con la definición del puente, las acciones y los resultados de los cálculos realizados
- Gráficas de resultados: esquema de discretización, mapas de esfuerzos para un tipo de carga o para una combinación correspondiente a un estado límite.
- Planos de definición geométrica: planta general, alzado longitudinal y sección transversal.
|