 |
|
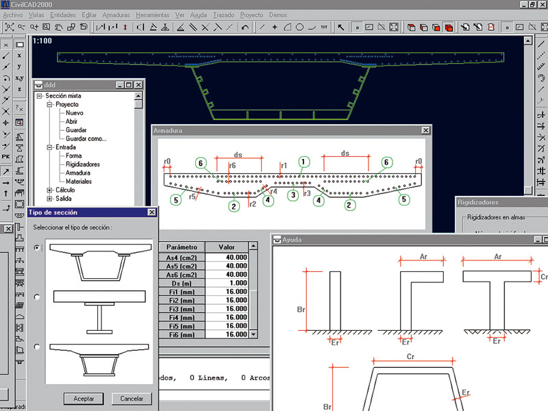
Aplicación: El módulo Sección Mixta permite abordar el cálculo de uno de los siguientes tipos de secciones: - Sección en doble T metálica con una losa de hormigón encima.
- Sección en cajón metálico abierto con una losa de hormigón encima.
Opcionalmente puede definirse una losa de hormigón sobre el ala inferior del cajón. - Sección en cajón metálico cerrado con una losa de hormigón encima.
Opcionalmente puede definirse una losa de hormigón sobre el ala inferior del cajón.
El programa permite definir una serie de rigidizadores longitudinales en las almas y alas de la sección metálica. El usuario puede seleccionar los materiales para el acero y el hormigón de entre las distintas opciones que le ofrece la biblioteca de materiales del programa. Todos los cálculos ejecutados en el presente módulo han sido desarrollados siguiendo las especificaciones establecidas en la norma RPX.
|
|
Cálculo: El usuario puede ejecutar, para la sección definida, los siguientes cálculos: - Características mecánicas de la sección íntegra, eficaz y reducida.
- Clasificación de la sección de acuerdo con los criterios establecidos en la norma RPX.
- Cálculo tensional no lineal. El programa permite definir un esfuerzo actuante sobre la sección metálica aislada y otro sobre la sección completa.
- Cálculo a rotura por flexión, cortante y torsión, con la obtención de los esfuerzos últimos.
- Obtención de los diagramas de interacción flector-axil-cortante con la consideración del efecto del torsor.
|
|
Resultados: Con el módulo de Sección Mixta pueden obtenerse los siguientes resultados: - Listados: caracterísitcas mecánicas de las secciones, listados de resultados de los cálculos tensionales y de rotura.
- Figuras de resultados: sección introducida, sección eficaz y sección reducida. Plano de deformación del cálculo tensional y plano de rotura para la comprobación a flexión. Diagramas de interacción de la sección.
|